7077 Red Sand Grove, Colorado Springs, CO 80923 US Colorado Springs Condominium for Sale
7077 Red Sand Grove, Colorado Springs, Colorado
Property Details
Active
$349,000
Listing Information
- MLS: 7357725
- Bedrooms: 3
- Baths: 3
- Partial Baths: 0
- SQ FT: 1486
- Lot Size: 0.0313
- Heat Source: Forced Air,Natu
- Schools: District 49
More Information
Property Description
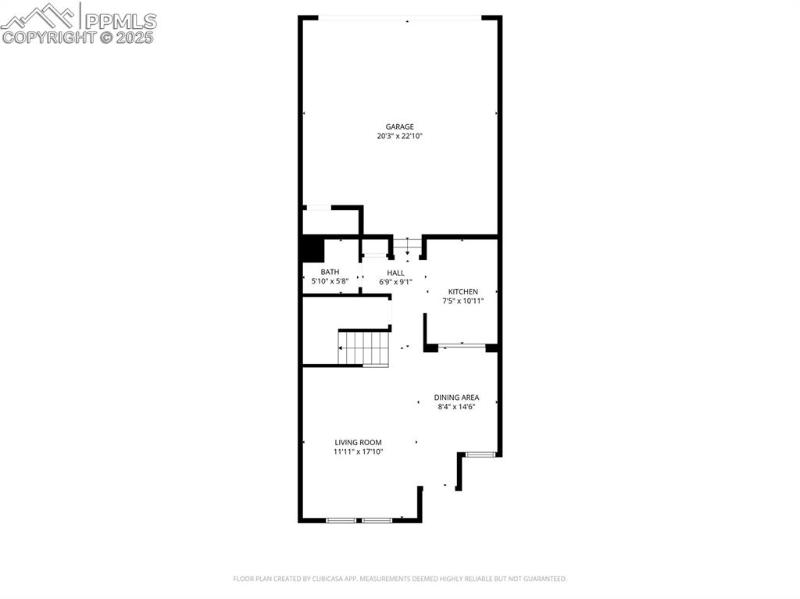
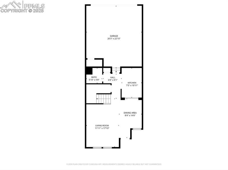
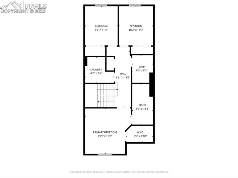
This bright and inviting 3 bedroom, 3 bathroom townhouse offers comfort, convenience, and an unbeatable location. Genuine hardwood floors welcome you into the open main level, where the great room flows into the dining area, perfect for entertaining or everyday living. The kitchen features a full-size pantry and opens to the dining room through a breakfast bar, creating a natural gathering space.Upstairs, the spacious primary suite includes vaulted ceilings, a walk-in closet, and a private attached bath. Two additional bedrooms and second full bathroom are also located upstairs. The large upper-level laundry room (with washer and dryer included!) adds extra ease and practicality. The property also features an attached 2 car garage, central air conditioning and generous storage. Located in a quiet, gated community just steps from the Sand Creek Trail and minutes from the Powers corridor, this home offers easy access to shopping, dining, and outdoor recreation, all while feeling peaceful and tucked away. Seller is offering $10,000 in concessions to help with down payment assistance or an interest rate buy-down. Information deemed reliable but not guaranteed. Buyer and Buyer's Agent to verify all information.
Please wait...
Request More Information
Close
Registration Required
Total Access grants you the ability to download reports, disclosures, virtual tours, home database information, and much more! Registration is easy. Sign up today and your confirmation will be sent directly to your inbox!
